Vendita Ville Forte Dei Marmi

€ 730.000

Rif: 867 - Villa Forte Dei Marmi


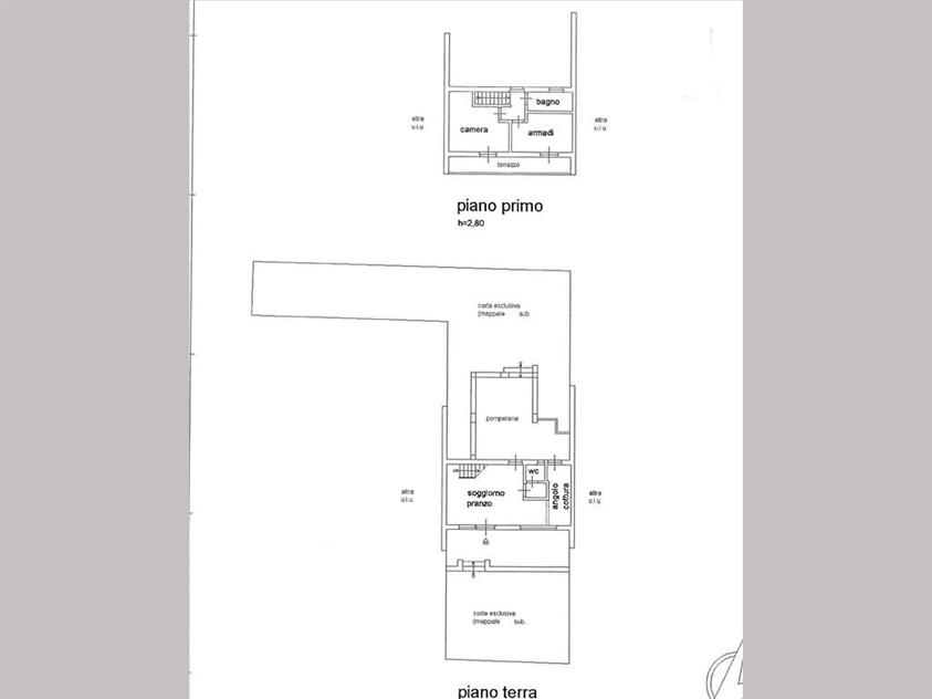
RIF 867 – Vittoria Apuana, soluzione indipendente in bel contesto residenziale a soli 600 mt. dal mare; porzione di villa trifamiliare circondata da ville di prestigio in posizione molto tranquilla, disposta su due piani fuori terra e così composta: PIANO TERRA: ingresso, soggiorno con zona pranzo, cucinotto ed un bagno; PIANO PRIMO: disimpegno, due camere da letto matrimoniali servite da un bagno. All'esterno veranda coperta con zona pranzo e giardino pertinenziale, ad uso esclusivo. Trattativa molto interessante. PER AFFITTO PAOLA 351 540 3592

Dettagli Immobile

Codice:
867
Zona:
Forte Dei Marmi
Tipologia:
Villa
Superficie m²:
100
Vani:
0
Camere :
2
Servizi:
2
Piscina:
No
Cl.Energetica:
G
Ipe:
176,28

Ricerca Il tuo immobile.

 

Ricerca per codice.

 

Richiedi informazioni su questo immobile



    Compilando questo modulo autorizzi la nostra Agenzia al trattamento dei Tuoi dati personali ai sensi del D.L. 30 giugno 2003 n. 196