Vendita Ville Forte Dei Marmi

€ 2.900.000

Rif: 851 - Villa Forte Dei Marmi


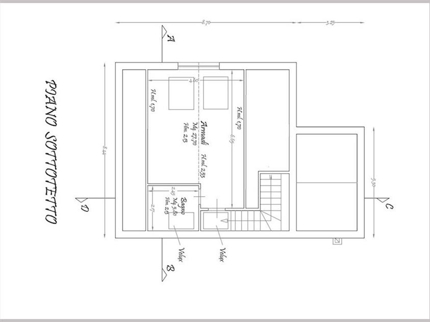
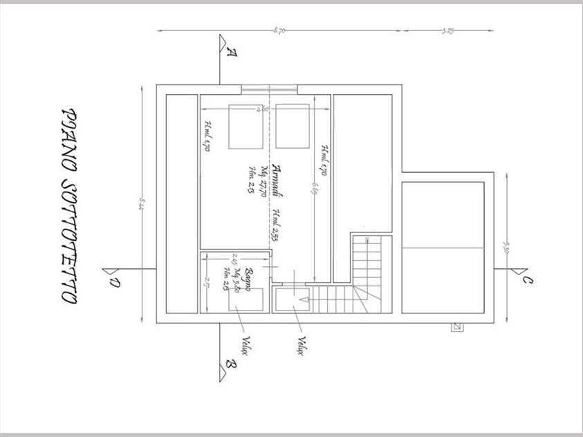
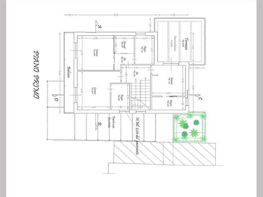
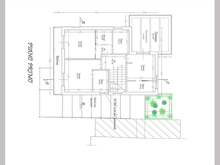
RIF 851 Forte dei Marmi, a soli 300 metri dalla spiaggia, vendesi splendida villa singola in costruzione con vasca idromassaggio. Elevata su due piani fuori terra oltre a sottotetto, la villa è così disposta: PIANO TERRA - ampio soggiorno pranzo, cucina, camera, bagno e centrale termica/lavanderia oltre a portico e pergolato per il living esterno. PIANO PRIMO - tre camere da letto matrimoniali ognuna col proprio bagno (ed una con cabina armadi) oltre a terrazza. PIANO SOTTOTETTO - Ampio mansarda con camera e bagno Consegna prevista a fine 2024

Dettagli Immobile

Codice:
851
Zona:
Forte Dei Marmi
Tipologia:
Villa
Superficie m²:
250
Vani:
0
Camere :
5
Servizi:
0
Piscina:
No
Cl.Energetica:
A
Ipe:
34,52

Ricerca Il tuo immobile.

 

Ricerca per codice.

 

Richiedi informazioni su questo immobile



    Compilando questo modulo autorizzi la nostra Agenzia al trattamento dei Tuoi dati personali ai sensi del D.L. 30 giugno 2003 n. 196